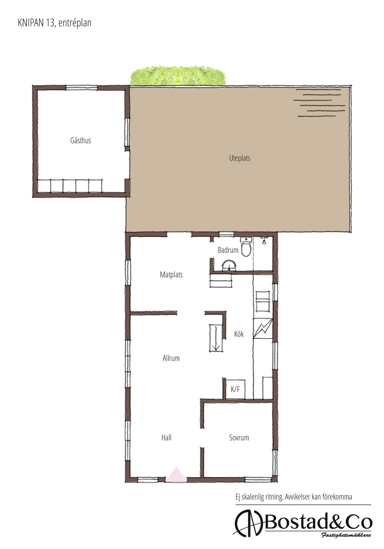
- Stuga med sovloft
- 1933
- 2 rok. varav 1 sovrum
41 + 15 kvm
Knipan 13 - Östra stranden
Stuga på Östra Stranden!
- KOMMANDE FÖRMEDLING -
Charmig stuga med gästhus och härlig uteplats – nära havet.
Välkommen till en trivsam och välskött stuga i populära Knipan på Östra Stranden. Här erbjuds ett bekvämt fritidsboende med genomtänkt planlösning, sovloft och fina möjligheter för både familj och gäster att trivas i.
På tomten finns en generös uteplats som inbjuder till härliga dagar i solen med långa, ljumna sommarkvällar. Delar av tomten är avskärmad och erbjuder både vind- och insynsskydd vilket skapar en privat och rofylld miljö att njuta av. Den lättskötta trädgården ger gott om utrymme för lek, avkoppling och sociala stunder.
Den praktiska gäststugan ger extra flexibilitet – perfekt för övernattande vänner, familj eller som ett eget krypin. Här finns även goda förvaringsmöjligheter som underlättar vardagen.
Läget är svårslaget med kort promenadavstånd till stranden, salta bad och trevliga restauranger. Här bor du i ett lugnt och omtyckt område med närhet till allt som gör livet vid kusten så eftertraktat – en perfekt plats för dig som söker avkoppling nära havet.
SE BOSTADEN I 3D-VIEW - THE DOLLHOUSE EXPERIENCE
Välkommen på visning när det passar dig! Här vandrar du runt i bostaden genom att klicka dig framåt i ringarna, precis som i Google Streetview. Ta dig tid att titta närmare på tapeter, golv eller utsikt - du väljer! Allt som krävs är att din webbläsare stöder 3D, Open GL - välkommen hem!
LÄS MER OM HUR 3D-VIEW FUNGERAR HÄRKöket är modernt och praktiskt utformat med goda arbetsytor och förvaring. Här finns kyl/frys, spishäll med ugn, spisfläkt samt rostfri ho. Golvet är belagt med ett slitstarkt grått linoleumgolv som både är lättskött och tåligt – perfekt för ett bekvämt fritidsboende. Här finns även en golvlucka till en mindre förvaringsyta placerad under golvytan.
Stugan inrymmer även ett sovrum på entréplan samt ett mysigt sovloft som ger extra sovplatser och flexibilitet för familj och gäster. Sovloftet har ett visst behov av renovering av dess ytmaterial.
Badrummet är funktionellt utrustat med duschhörna, wc och handfat. Ytskikten består av våtrumsmatta på golvet och våtrumstapet på väggarna, vilket ger ett lättskött och praktiskt utrymme.
Genomgående präglas interiören av ljusa materialval och en hemtrevlig atmosfär som gör stugan enkel att trivas i.
2012-2020, man har låtit omdisponera f.d uterum till del av allrum, uppfört gäststuga och förråd, lagt in nya golv , ny el har dragits in, nytt kök har installerats, fasadpanel har bytts ut och staket har uppförts vid uteplats.
Som stugägare innehar du en andel i föreningen, där ett andelsbevis om 38.000 kr ingår i köpet. En årlig avgift om 10.200 kr betalas till föreningen och inkluderar vatten och avlopp samt skötsel av vägar, grönområden och gemensamma anläggningar. I området finns bland annat tvättstuga, boulebana, festlokal och fotbollsplan samt parkeringsplatser. Festlokalen kan hyras av medlemmarna till förmånliga villkor.
Enligt föreningen finns möjlighet att belåna stugan.
Stugan säljs med friskrivningsklausul.
Dokument att ladda hem
Formulär Anmäl Intresse
Intresserad?
Känns denna bostad intressant för dig eller någon du känner? Vi hjälper dig eller din vän med svar på alla frågor och funderingar. Hur vill du gå vidare nu?
”Vi vill hjälpa människor att hitta hem!” Bostad&Co
VI HJÄLPER DIG
Vi vill att du ska känna dig trygg och säker på att du gör rätt genom din bostadskarriär.
För vi är ju inte bara här och nu. Vi finns kvar genom livets alla skeden!
















